Leaked Details of AA’s New Flagship Lounge in Philadelphia
Update: Some offers mentioned below are no longer available. View the current offers here.
Update 7/10/17: AA reached out to clarify that these plans are not final. Additionally, this lounge is not expected to offer Flagship First Dining, which is now available at New York-JFK.
With American Airlines' first Flagship Lounge in New York (JFK) now open and looking great, we've been anxious to learn more about when and where the next Flagship Lounge will open. Officially, all we have is "later in 2017" for Chicago (ORD), Los Angeles (LAX) and Miami (MIA) and "2018" for Dallas/Fort Worth (DFW), London Heathrow (LHR) and Philadelphia (PHL).

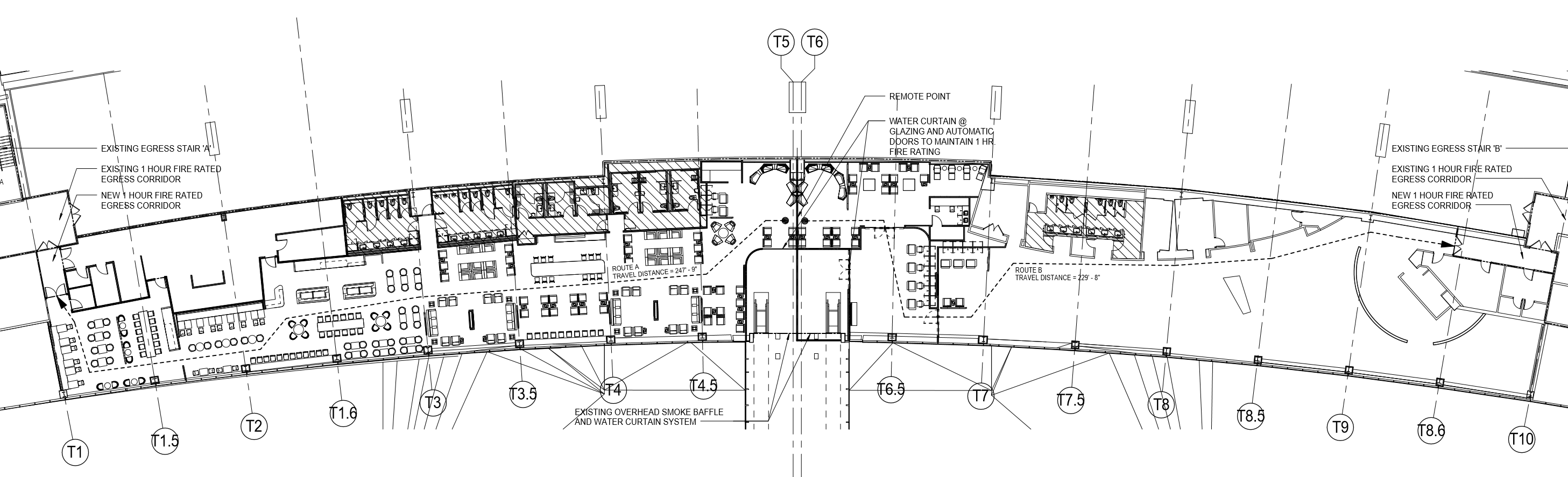
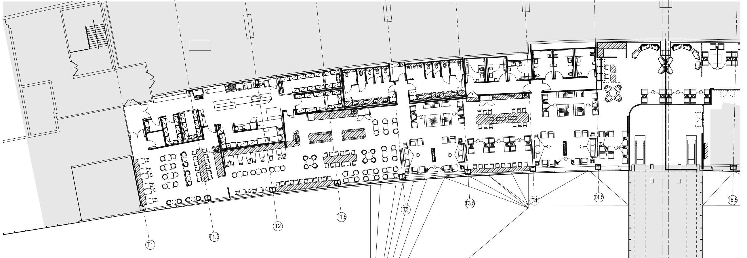
But, thanks to a TPG reader, we have a lot more information about when one of these lounges will open and what it's going to look like. According to plans, the new PHL Flagship Lounge construction will begin August 15, 2017 with completion scheduled for April 10, 2018.

The Flagship Lounge will be built out of the existing Concourse A-West Admirals Club, which is on the "mezzanine level" two stories above the gate area. During the eight-month construction period, Concourse A-West will be without an Admirals Club. Admirals Club members and Citi / AAdvantage Executive World Elite Mastercard cardholders and authorized users can transfer inside security to the other Admirals Clubs (Concourse A-East, Concourse B/C, Concourse F).
Or, if you're a Platinum Card® from American Express or Business Platinum Card® from American Express cardholder, you'll soon be able to visit the new Amex Centurion Lounge projected to open in PHL in early August.

The Flagship Lounge area will total around 25,000 square feet and is rated to hold up to 420 occupants. For those of us who enjoy plane spotting from lounges, you'll be pleased — there will be plenty of seats arranged to face the runway.

All Flagship Lounge guests will have access to the new hot food buffet and self-serve beverage bar, including a separate wine bar.

Like the JFK lounge, the PHL Flagship Lounge will be feature showers — there will be six showers with three being ADA accessible. Once open, the under-construction Centurion Lounge and this Flagship Lounge will be the only two lounges with showers at PHL.
When you spot news that you think would be a fit for TPG, please send us an email at Tips@thepointsguy.com. If we run a story based on your pitch, we’ll give you a $100 Visa gift card to use during your own travels (or for anything else).
H/T: TPG Reader

