Relaxing in a $4 Million Lounge Under the Dulles Control Tower Could Become a Reality
AvGeeks could one day get a new vantage point for plane spotting from the observation deck of the historic control tower at Washington Dulles International Airport (IAD) -- if the right developer comes along.
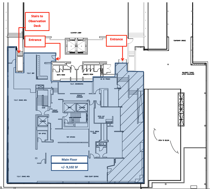
Under a new proposal outlined in a recent report from the Metropolitan Washington Airport Authority (MWAA), the airport authority is looking for a company to turn the under-utilized space beneath the control tower at Dulles into a lounge with access to the historic tower's observation deck, as reported by View from the Wing.

Creation of the lounge would require around a $4-million investment from whichever group decides to take over the space, which is 9,100 square feet -- on the small side for most airport lounges. The price tag is a whopping $440 per square foot. The report says the space must be fully renovated before it can be occupied, including installation of new utilities, heating, ventilation and air conditioning.
A glimpse at the what it would cost to build the lounge offers a little insight into why frequent flyers — who don't have a credit card that includes lounge access — pay such high annual fees for lounge access: The airport is offering the space for lease and expects a minimum annual guarantee of $925,000 for the first year, increasing by 3% each year of the 10-year lease. This means rent on the space will be pushing a minimum of $1.25 million after the first decade. This minimum is met by the airport being paid 10% of the gross lounge receipts, meaning the cost for the space could be much higher.

It's unknown if any company is willing to make the investment to renovate the rather small space. Construction will also be subject to approval by the Virginia Historical Society, due to the historic nature of the structure itself, adding yet another complication to the project. For now, it's wait and see if anyone is going to jump at the chance to offer this unique space to the traveling public. As Dulles could really use another lounge, whether it be an Amex Centurion Lounge or something offered by Priority Pass, we're hoping someone is willing to take on the project.
For the latest travel news, deals and points and miles tips please subscribe to The Points Guy daily email newsletter.
TPG featured card
at American Express's secure site
Terms & restrictions apply. See rates & fees.
| 3X | Earn 3X Miles on Delta purchases. |
| 1X | Earn 1X Miles on all other eligible purchases. |
Pros
- Delta SkyClub access when flying Delta
- Annual companion ticket for travel on Delta (upon renewal)
- Ability to earn MQDs through spending
- Various statement credits for eligible purchases
Cons
- Steep annual fee of $650
- Other Delta cobranded cards offer superior earning categories
- Earn 100,000 Bonus Miles after you spend $6,000 or more in purchases with your new Card within the first 6 months of Card Membership and an additional 25,000 bonus miles after you make an additional $3,000 in purchases on the Card within your first 6 months, starting from the date that your account is opened. Offer Ends 04/01/2026.
- Delta SkyMiles® Reserve American Express Card Members receive 15 Visits per Medallion® Year to the Delta Sky Club® when flying Delta and can unlock an unlimited number of Visits after spending $75,000 in purchases on your Card in a calendar year. Plus, you’ll receive four One-Time Guest Passes each Medallion Year so you can share the experience with family and friends when traveling Delta together.
- Enjoy complimentary access to The Centurion® Lounge in the U.S. and select international locations (as set forth on the Centurion Lounge Website), Sidecar by The Centurion® Lounge in the U.S. (see the Centurion Lounge Website for more information on Sidecar by The Centurion® Lounge availability), and Escape Lounges when flying on a Delta flight booked with the Delta SkyMiles® Reserve American Express Card. § To access Sidecar by The Centurion® Lounge, Card Members must arrive within 90 minutes of their departing flight (including layovers). To access The Centurion® Lounge, Card Members must arrive within 3 hours of their departing flight. Effective July 8, 2026, during a layover, Card Members must arrive within 5 hours of the connecting flight.
- Receive $2,500 Medallion® Qualification Dollars with MQD Headstart each Medallion Qualification Year and earn $1 MQD for each $10 in purchases on your Delta SkyMiles® Reserve American Express Card with MQD Boost to get closer to Status next Medallion Year.
- Enjoy a Companion Certificate on a Delta First, Delta Comfort, or Delta Main round-trip flight to select destinations each year after renewal of your Card. The Companion Certificate requires payment of government-imposed taxes and fees of between $22 and $250 (for itineraries with up to four flight segments). Baggage charges and other restrictions apply. Delta Basic experiences are not eligible for this benefit.
- $240 Resy Credit: When you use your Delta SkyMiles® Reserve American Express Card for eligible purchases with U.S. Resy restaurants, you can earn up to $20 each month in statement credits. Enrollment required.
- $120 Rideshare Credit: Earn up to $10 back in statement credits each month after you use your Delta SkyMiles® Reserve American Express Card to pay for U.S. rideshare purchases with select providers. Enrollment required.
- Delta SkyMiles® Reserve American Express Card Members get 15% off when using miles to book Award Travel on Delta flights through delta.com and the Fly Delta app. Discount not applicable to partner-operated flights or to taxes and fees.
- With your Delta SkyMiles® Reserve American Express Card, receive upgrade priority over others with the same Medallion tier, product and fare experience purchased, and Million Miler milestone when you fly with Delta.
- Earn 3X Miles on Delta purchases and earn 1X Miles on all other eligible purchases.
- No Foreign Transaction Fees. Enjoy international travel without additional fees on purchases made abroad.
- $650 Annual Fee.
- Apply with confidence. Know if you're approved for a Card with no impact to your credit score. If you're approved and you choose to accept this Card, your credit score may be impacted.
- Terms Apply.
- See Rates & Fees


